作者:xavierliu
從完工到現在將近三個月,之前在 mobile01 爬了好多人的開箱文,沒想到今天我也有機會來開箱一下。

秉持今年事,今年畢,趁著連續假期,把今年的事情都圓滿完成,準備迎接新的一年。
2012年,還是 26 歲的宅宅工程師,看著新竹房價每個月都在漲,覺得房價漲的速度比自己薪水還要快,牙一咬就買下了人生的第一棟房子。當時慈雲路以西都還是一片草地居多,只有蓋了兩三個案子。如今,已是今非昔比,儼然變成了都市叢林。
當時買了房子之後,沒有預留裝潢的費用,只能把租屋處的傢俱搬入後,就開始了自己的房貸人生。第一次存到裝潢費時,碰到要結婚,第二次存到時,因為有需求還是先買了車。還記得剛搬進去的前三年,因沒有冷氣可以吹,常常晚上會被熱醒,但都忍了過來。想著總有一天要把整個房子重新裝潢過,不希望每次動工都只東弄一點,西弄一點。
終於到了今年,和老婆下定決心,在還沒有小朋友出生以前,一定要把房子重新裝潢。在朋友的介紹下,推薦了一位非常負責且充滿熱情的設計師,讓我們很放心地把房子交給了她。在這裡要大力推薦這位設計師。自己本身是一個非常龜毛的人,常常因為細節,家人們都很受不了。但沒想到設計師對於自己工班的要求有過之而無不及。設計師脾氣真的很好且非常樂觀!不但和工班討論時,有歡樂的氣氛。與客戶溝通時,也充滿著喜樂的心。和老婆都同樣是上班族,有空的時間都在六日居多,設計師也配合我們的時間,六日放假時來幫我們處理房子的事情。與她的關係,不只是工作,更像是熟悉的朋友。
先來幾張施工照。
當系統櫃都完成後,發現 B1 車庫與 1F 客廳與廚房,自己當初所挑選的配色實在不喜歡,和老婆討論後,毅然決然要全部換掉,最後在設計師的勸退下,B1 保留原來的設計,但 1F 的系統櫃還是重新做過。因為如此,造成原本的工期延長一個月(設計師很堅持要所有的工都完成後,才能開始鋪設木地板,怕施工會損傷木地板)。
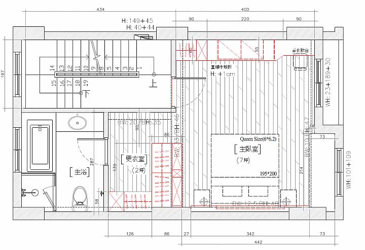
再來幾張平面設計圖
等了三個月,終於完工了!
[1F] 花園
[B1] 車庫
車庫內可以停放兩台車。
安全帽架真的很好用,最後一刻請設計師一定要做!
下面那張穿鞋子的小椅子,是設計師利用剩餘的系統櫃木板做的。
這面牆是我老婆的最愛!
油漆師傅說,這面牆刷到很崩潰,一面白牆要刷成這樣,實在太困難了!


去南法普羅旺斯玩的時候,買回來的畫。


老婆送的結婚週年禮物!


儲藏室亂七八糟,還是別看的好....

內部的置物櫃,都是用剩餘的系統櫃組成的,感謝設計師幫我們省了不少錢。

其實倉庫內藏有一個水塔,但沒有拍到。

玄關+鞋櫃
很喜歡這盞像是太陽一樣的燈,每天出門經過時,心情就會變得很好!


[1F] 客廳&廚房
從 B1 走到 1F,拉門的手把,是用之前的扶手鋸下來做成的。 當初設計師覺得樓梯扶手丟掉很可惜,就直接變成拉門手把,這個巧思每個客人都覺得很棒!

左邊銀色的勾架,是安裝黑色玻璃前,先去IKEA 買好,接著再請設計師丈量後,把需要鑽孔的地方先挖好,最後再組裝起來。
三個可愛的水泥燈,是老婆選的。和旁邊藍色的牆,有互相呼應的效果。




這套餐桌,是之前保留下來的。橡皮木的質感非常棒,和家人一同在餐桌上用餐非常溫馨!



設計師知道我和太太都是基督徒,做了一個很有設計感的十字架。


時鐘是蜜月時,在西班牙買回來的。17世紀時,天才達文西的設計之一,轉起來時真的非常特別! 如有興趣的人,可以觀看下方連結內的影片。
達文西時鐘


杯墊的木頭,是製作床頭櫃時,多出來的木頭,再經過設計師加工後,送給我們的交屋禮物。



夜深時,喜歡一個人安靜的感覺。



優渥實木的邊几桌,真的是一個非常好用的東西。




Hugo,小朋友們的開心果,很有主人的架勢喔!


電視牆
用手去觸碰時,可以感受到木頭的毛細孔。




Apple Airport Time Capsule



擔心以後有小朋友,所以每個轉角都是圓弧形設計。



[1F] 廁所
[2F] 主臥
客人看到這盞燈,喜好和評價極為兩極。我個人是覺得像是花朵,老婆覺得像是太空船底。大家覺得呢?

再一次看到設計師細心的巧思,隱藏在收納櫃中的十字架(黑色)。
滿滿的衣櫃,女人的夢幻更衣室。




設計師就是拿床頭置物平台的餘料去做成杯墊。


白天的房間,有另一番風味。
[2F] 廁所
[3F] 和室
冬天的衣物,或是少用的衣服都放在這裡。
下方的櫃子可以收納冬天的棉被。

桌子是電動自動升降,有防夾的機制。
女性朋友看到都說可以吃火鍋,男生看到都說可以打桌遊。

下方還有更大的收納空間,照片中的行李箱是30吋的大小喔!

[3F] 客房
[3F] 廁所
[4F] 書房

水管燈是老婆選的。
這一盞燈,是整棟房子唯一不是LED 的燈泡。

書架內的 F 和 L,是我的英文名字縮寫。
義大利羊毛氈地圖,標記著我們去過的地方。主要都集中在歐洲和亞洲居多。
天花板的咖啡色,為了要刷得均勻,油漆師傅刷了20多次後才成功,實在是辛苦了!
[4F] 陽台

給水管住的小房子,很可愛!

感謝大家耐心看完整篇文章,想分享的照片已經刪掉一些,但還是太多了。
施工期間每兩天就會跑到工地看看進度,自己親自看著房子一點一滴的慢慢改變。過程非常的辛苦,但完成之後,充滿著成就感和喜悅,一切都是值得的!擁有自己的家,實在是一件非常棒的事情,每天繁忙的工作後,回到家裡總是能重新充電,讓我們能邁向新的挑戰。家,真的是每個人的避風港。期望能在不久的未來,也會有新的成員加入(老婆想要三個小孩,兩隻狗,一隻貓)。
再一次感謝,一起參與和協助完成的家人,朋友,以及設計師。
如有需要任何資訊,歡迎寄站內信一同討論與交流喔。
謝謝!
(本文獲得作者同意轉貼)
原文連結:http://www.mobile01.com/topicdetail.php?f=360&t=5028446
設計:一墨白設計工作室


